Page suivante
Page précédente
Puget-sur-Argens (83480)

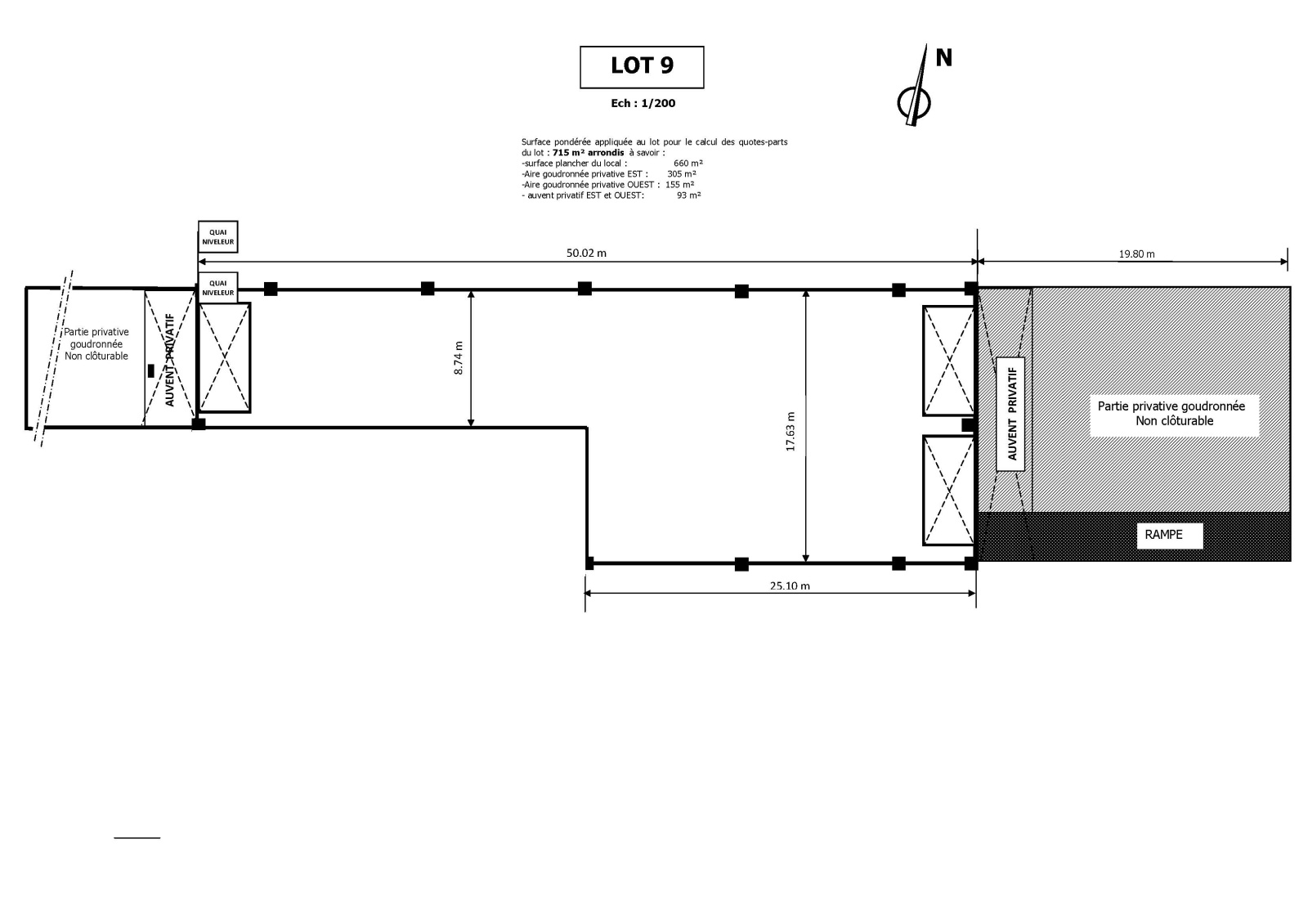
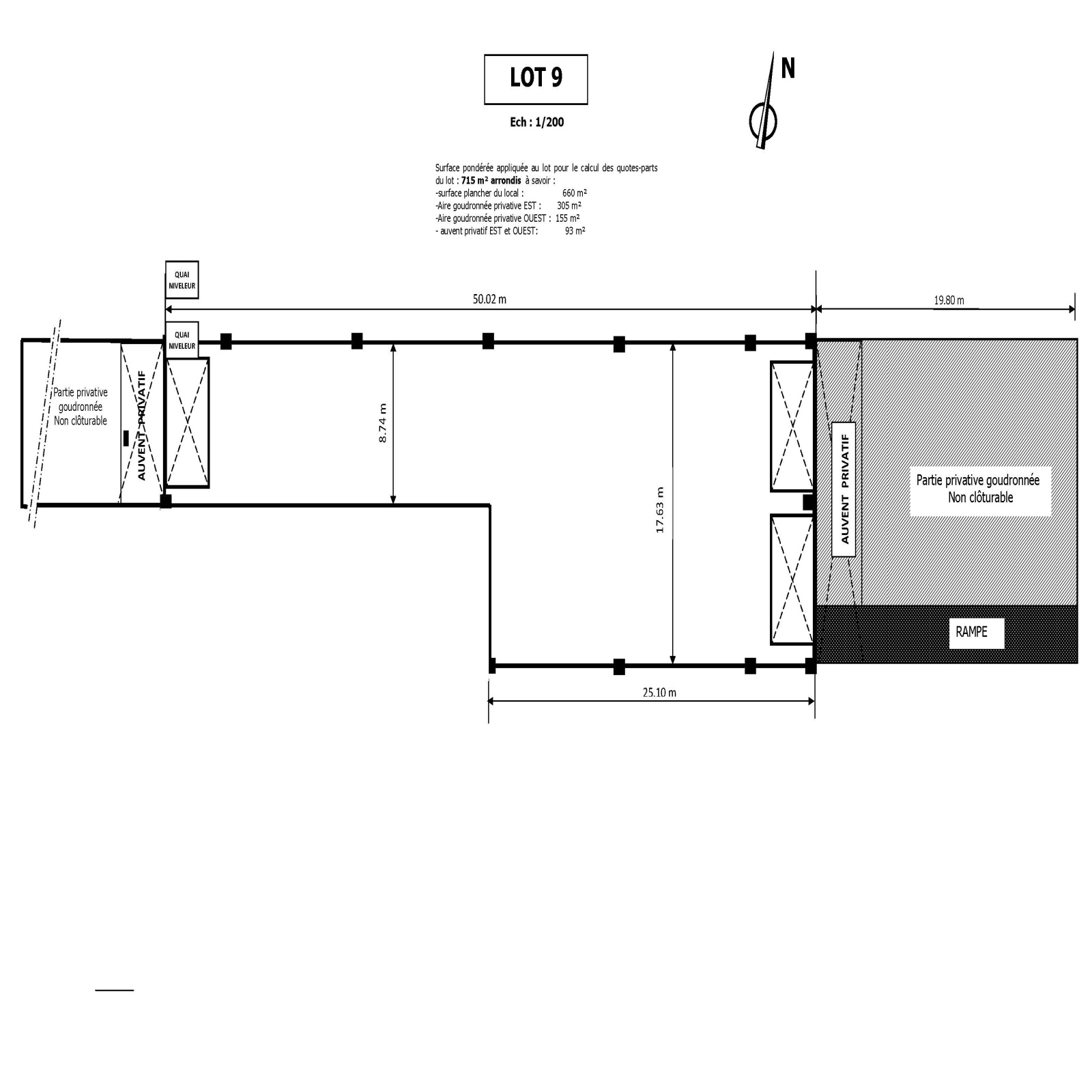
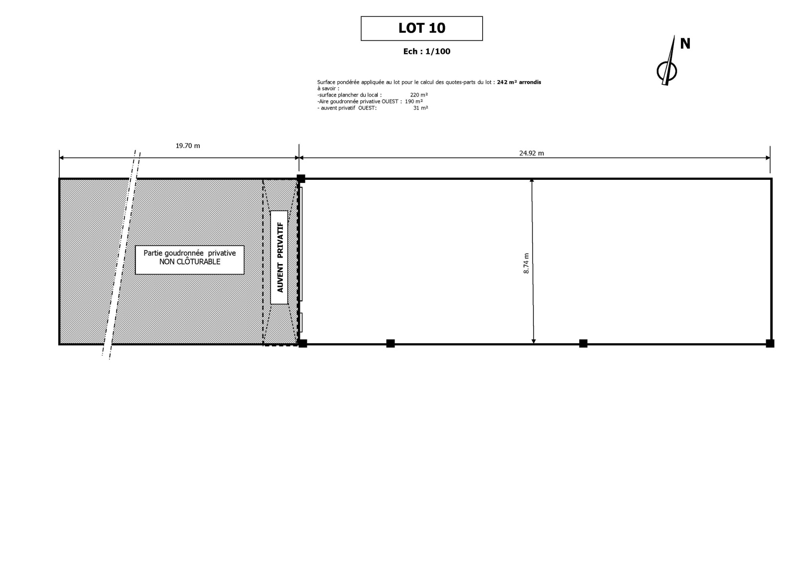
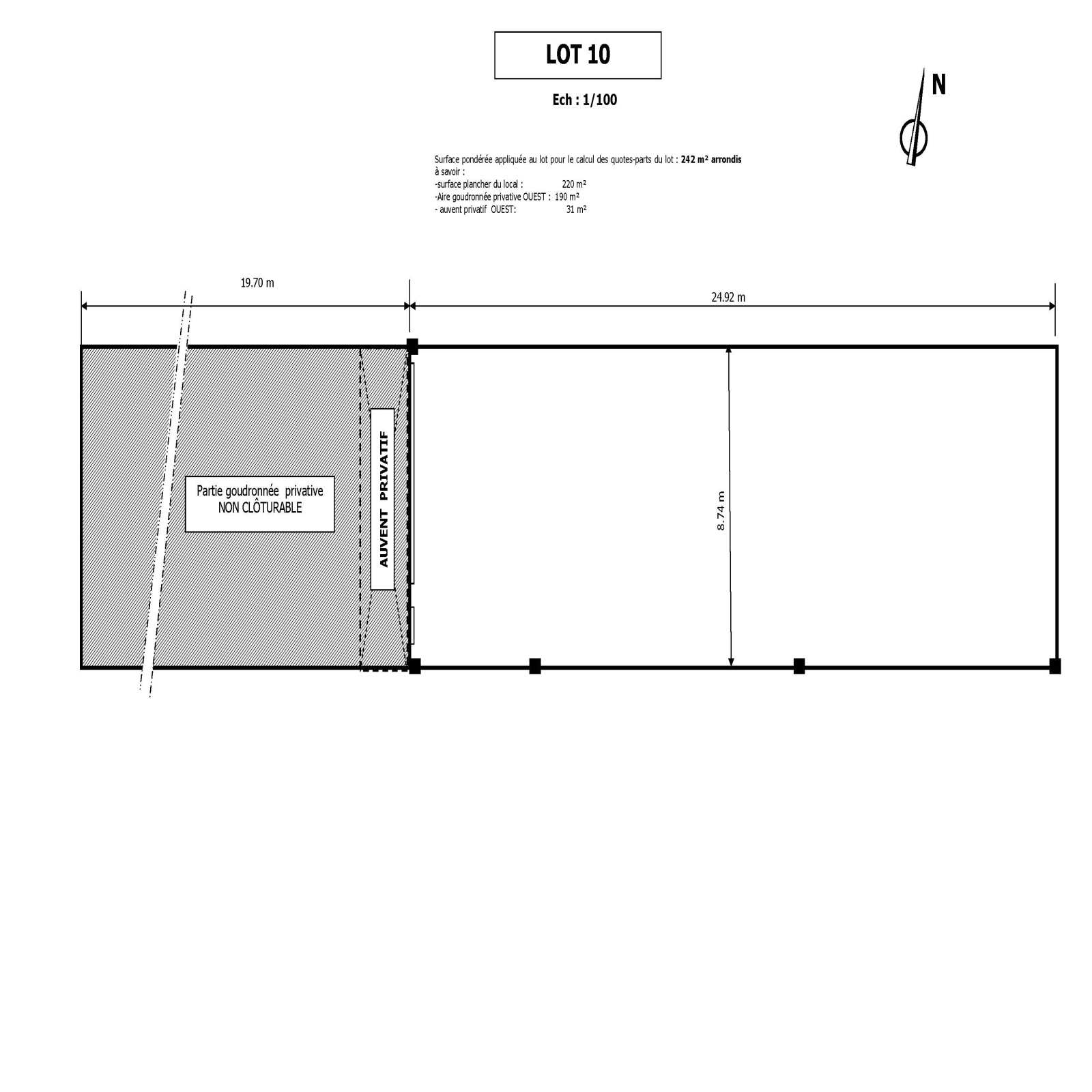
Local d'activité 880 m²

11 250 € / mois HT - HC*
Réf LCO40006561

Karika Immobilier vous propose à la location ce local d'activité à Puget sur Argens.

Situé au coeur d'une zone d'activité, ce bien totalise une surface de 880 mètres carrés au sol.

Il bénéficie d'une hauteur sous plafond de 8 mètres et d'une dalle lissée "à l'hélicoptère" charges lourdes.

Ce local dispose de cinq quais de déchargement dont trois typés véhicules poids lourds avec niveleurs.

Traversant sur la longueur, ce bien est équipé de cinq portes sectionnelles motorisées.

Un espace bureaux sur deux niveaux complète l'ensemble et comprend une cuisinette ainsi qu'un bloc sanitaire.

Ce bien s'adresse à tout type d'activité industrielle, commerciale ou artisanale et jouit d'un emplacement stratégique.

Accès poids lourds confortable, proximité des grands axes et du centre-ville.

Informations sur simple demande.


Les informations sur les risques auxquels ce bien est exposé sont disponibles sur le site Géorisques

Bilan énergétique

Diagnostics énergetiques
Consommation énergétique
A B C D E F G
Emission de gaz à effet de serre
A B C D E F G
DPE non concerné
A propos de ce bien Caractéristiques de ce bien
  • Surface 880 m²
  • construit en 2012
  • Chauffage individuel : air pulsé (climatisation)

Financier

Informations financières
Loyer HT 11 250 € / mois
Prix net vendeur 2 000 000 €
Honoraires HT charge locataire 27 000 €
Dont état des lieux Non renseigné
Dépot de garantie 33 750 €
Bail commercial

Autour du bien

Découvrez le quartier

* HC : Hors Charges

* HT : Hors Taxes